Accueil site Voyages Autres mondes Papillons Informations



Andalousie

L'Alhambra de Grenade

Palais des Nasrides 
 
Circuit en Andalousie
Séville
  La ville
  Cathédrale et Giralda
  Alcazar
  Maison de Pilate
  Quartier de la Judéria
Région de Séville
  Italica
Région de Cordoue
  Château d'Almadovar
  Madina Al Zahra
  Mosquée de Cordoue
L'Alhambra de Grenade
  Vue de la ville
  Jardin du Généralife
  Palais des Nasrides
  Palais de Charles Quint
Région de Malaga
  Malaga
  Marbella
  Ojén
Ronda
  La ville nouvelle
  Le pont neuf
  La vieille ville
 
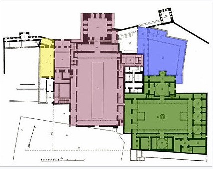
Les palais nasrides de l'Alhambra constituent un complexe de bâtiments ornementaux bâtis sur plusieurs générations. Les salles sont communicantes et donnent sur des cours intérieures ; elles suivent un tracé orthogonal.
Dans leur forme actuelle, on peut distinguer trois zones d'ouest en est: le Mexuar, le palais de Comares, les palais des Lions.

Plan des palais Nasrides :
- en jaune, le Mexuar ;
- en rouge, le palais de Comares ;
- en vert, le palais des Lions ;
- en bleu, les logis de l'empereur.

Cliquez sur une image pour l'agrandir

© Site Burama avril 2020 - Tous droits réservés. Limitation à l'usage non commercial, privé ou scolaire.